Beschrijving
Met deze sfeervolle levensloopwoning
kiest u voor comfort en gemak. Alle functies om te kunnen leven bevinden zich
op de begane grond, zodat de woning geschikt is voor nu en later. Via de hal op
de begane grond, waar zich het toilet en de trap naar de 1e verdieping
bevinden, betreedt u de woonkamer met open keuken. De openslaande tuindeuren
aan de achterzijde geven toegang tot uw terras en tuin. Vanuit de woonkamer
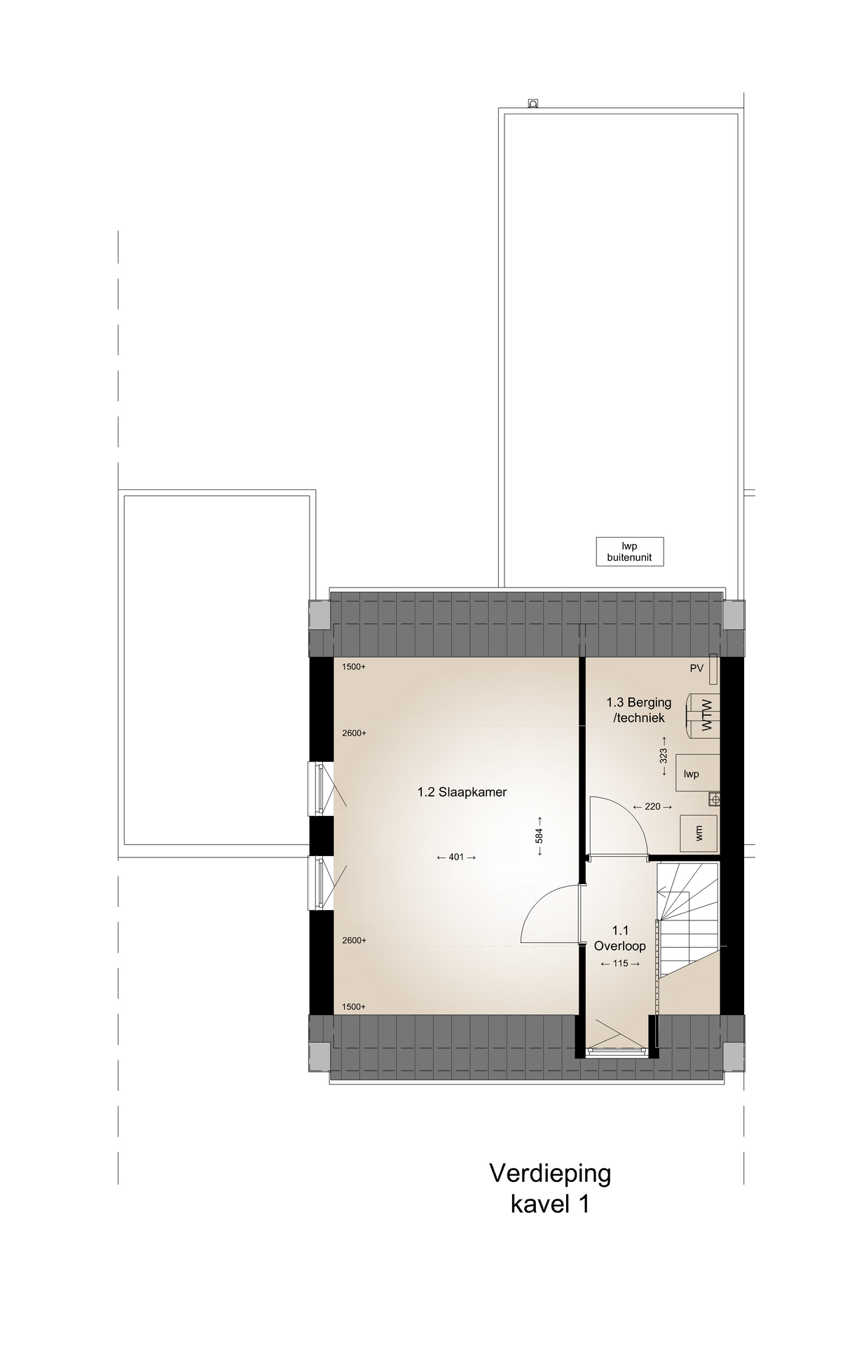
betreedt u via een doorgang de bad- en slaapkamer. Op de 1e verdieping bevindt
zich de 2e slaapkamer en een ruimte/berging waar de installaties zich bevinden.
De woning is voorzien van een ruime garage/berging.
Door subtiele verschillen in geveldetails krijgen de woningen en het straatbeeld een eigen identiteit en karakter. Bij de woningen wordt een rode en witte tint metselwerk toegepast. Bovendien worden de woningen uitgevoerd met een warmtepomp, die de woning van warm tapwater kan voorzien en zowel kan verwarmen als koelen. Zo is het binnen ook in de zomer altijd aangenaam en bespaart u op energielasten.
In totaal worden er 3 van dit type woningen gerealiseerd, te
weten kavelnummers 1 (rood), 22 (wit) en 31 (wit).
Heeft u interesse in deze woning, ga dan naar
CONTACT. Aan de hand van het voorkeursformulier kunt u daar eenvoudig uw
voorkeur(en) kenbaar maken bij ons makelaarsteam.
